Меню Поиск Разместить Избранное Кабинет

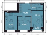
Продается 3-комн. квартира 56.99 м²

Объявление 471140, обнов. 25.02.26
144
17 076 128 ₽ 299 634 ₽/м²
Следить за ценой

Подписка на изменение цены

Мы сообщим вам, если цена объекта изменится
или на почту
Нажимая кнопку «Подписаться» вы соглашаетесь с политикой конфиденциальности
Купить в ипотеку:
АКЦИЯ! TRADE-IN
Обменяй свою недвижимость на квартиру в ЖК «RIVERANG».
до 28.02.2026 Подробнее
АКЦИЯ! Подарок за рекомендацию
Подарок при покупке квартиры в ЖК «RIVERANG» по рекомендации действующего дольщика.
до 28.02.2026 Подробнее
Адрес
Иркутск, Октябрьский р-н,
Верхняя Набережная, 133 стр., кв. 127
Новостройка
Срок сдачи
3 кв 2026 — по проекту
Состояние
Фасадные работы
Застройщик
ГОРСТРОЙ
Общая площадь
56.99 м²
Этаж / всего
3 / 8
Тип дома
Железобетон
Тип и серия дома
Новой планировки

- Рассрочка от застройщика
- Траншевая ипотека
- Трейд-ин
- Комбо-ипотека

Клубный дом бизнес-класса «RIVERANG» расположен на берегу Ангары на Верхней Набережной Иркутска.

Проект включает в себя строительство 4х блок-секций по 8 этажей. Квартирография дома представлена широким выбором планировочных решений от 28 до 126 кв.м. В двух блок-секциях доступны пентхаусы.

На цокольном этаже расположены кладовые помещения от 2.8 до 8.2м2. Для автомобилей предусмотрен вместительный подземный паркинг на 153 машино-места.

Преимущества клубного дома «RIVERANG»:

Высота потолков от 3 до 3.4м (квартиры high flat)

Закрытая территория с видеонаблюдением с доступом через приложение

Оборудованная зона отдыха на крыше для всех жителей

Отделка квартир white box, Клубный дом бизнес-класса «RIVERANG» расположен на берегу Ангары на Верхней Набережной Иркутска.

Проект включает в себя строительство 4х блок-секций по 8 этажей. Квартирография дома представлена широким выбором планировочных решений от 28 до 126 кв.м. В двух блок-секциях доступны пентхаусы.

На цокольном этаже расположены кладовые помещения от 2.8 до 8.2м2. Для автомобилей предусмотрен вместительный подземный паркинг на 153 машино-места.

Преимущества клубного дома «RIVERANG»:

Высота потолков от 3 до 3.4м (квартиры high flat)

Закрытая территория с видеонаблюдением с доступом через приложение

Отделка квартир:
Стены несущие/самонесущие: оштукатуривание гипсовыми смесями, шпатлёвка гипсовыми смесями в 2 слоя.
Перегородки между комнатой и санузлом: обработка швов ГВЛ листов гипсовыми смесями с армирующей сеткой со стороны комнаты и санузла.
Оконные откосы и откос входной двери: оштукатуривание гипсовыми (или цементно-песчаными) смесями, шпатлёвка гипсовыми смесями в 2 слоя.
Полы: цементно-песчаная полусухая стяжка пола по вспененной шумоизоляции.
Потолки: обеспыливание грунтовкой глубокого проникновения.
Стены санузла: монолитные стены без отделки, штукатурка и шпаклёвка; стены из штучного материала — оштукатуривание гипсовыми смесями и шпаклёвка.
Перегородки санузла: обработка швов ГВЛ листов гипсовыми смесями с армирующей сеткой.
Электропроводка, ГВС, ХВС и канализация: не выполняются.
Окна: тёплые алюминиевые окна с двухкамерным стеклопакетом, детскими замками и защитными рёбрами.
Витражное остекление тёплых лоджий: блоки из тёплого алюминиевого профиля с двухкамерным стеклопакетом, высота витражей 2,1 м и 2,4 м.
Открытые лоджии и балконы: ограждение из закалённого стекла.
Входные двери: металлические противопожарные двери с двумя замками и внутренней декоративной панелью.

Специализированный Застройщик МетраСтрой Номер объявления SD38-471140.

ГОРСТРОЙ
По вопросам покупки обращаться:
Позвонить
Скажите застройщику, что нашли это объявление на СИБДОМЕ
Написать

Похожие объявления

Не можете найти нужный вариант?

Оставьте заявку на подбор объекта и мы отправим ее трем проверенным нами агентствам недвижимости. Они возьмут все вопросы поиска на себя.
Нажимая кнопку «Отправить заявку» вы соглашаетесь с политикой конфиденциальности.