Меню Поиск Разместить Избранное Кабинет

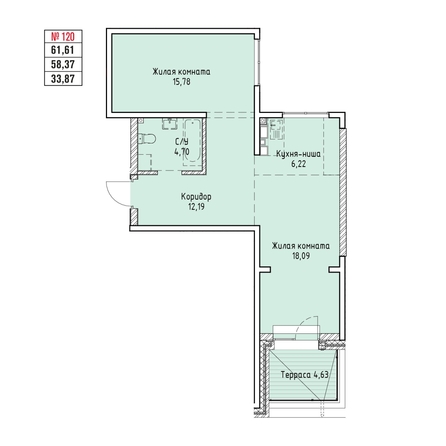
Продается 2-комн. квартира, 61.61 м²

Объявление 468756, обнов. 07.11.25
81
10 966 580 ₽ 178 000 ₽/м²
Следить за ценой

Подписка на изменение цены

Мы сообщим вам, если цена объекта изменится
или на почту
Нажимая кнопку «Подписаться» вы соглашаетесь с политикой конфиденциальности
Купить в ипотеку:
Адрес
Срок сдачи
4 кв 2027 — по проекту
3 кв 2025 — прогноз
Состояние
Отделочные работы
Общая площадь
61.61 м²
Площадь кухни
6.22 м²
Этаж / всего
15 / 19
Тип дома
Монолит-кирпич
Тип и серия дома
Новой планировки

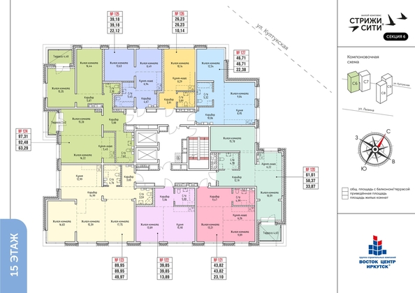
Торцевая двухкомнатная квартира с окнами на три стороны: юго-восток, северо-восток и северо-запад. Большой 10-метровый холл прекрасно вместит несколько шкафов-купе для комфортной организации сезонных вещей. Жилые комнаты расположены «распашонкой», в центре квартиры — кухня и гостиная. Два санузла можно разделить на гостевой и хозяйский или оставить одним большим помещением. В этой планировке на 15 и 16 этажах в южной спальне есть выход на террасу с видом во двор и на улицу Советская.

ООО СЗ «ДЕСС-Инвест» (Группа строительных компаний «Восток Центр Иркутск») Номер объявления SD38-468756.

Восток Центр Иркутск
По вопросам покупки обращаться:
Позвонить
Скажите застройщику, что нашли это объявление на СИБДОМЕ
Написать

Похожие объявления

Не можете найти нужный вариант?

Оставьте заявку на подбор объекта и мы отправим ее трем проверенным нами агентствам недвижимости. Они возьмут все вопросы поиска на себя.
Нажимая кнопку «Отправить заявку» вы соглашаетесь с политикой конфиденциальности.