Меню Поиск Разместить Избранное Кабинет

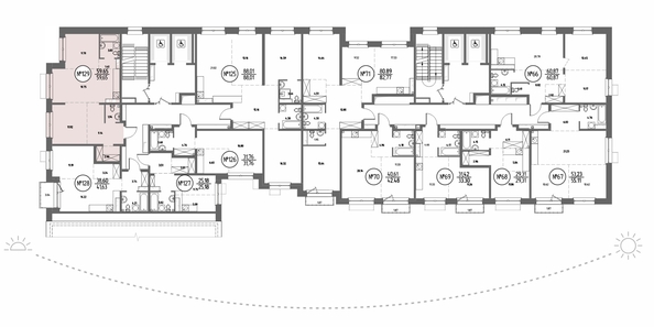
Продается 2-комн. квартира, 59.66 м²

Объявление 467299, обнов. 04.10.25
2
11 940 000 ₽ 200 134 ₽/м²
Следить за ценой

Подписка на изменение цены

Мы сообщим вам, если цена объекта изменится
или на почту
Нажимая кнопку «Подписаться» вы соглашаетесь с политикой конфиденциальности
Купить в ипотеку:
Срок сдачи
3 кв 2029 — по проекту
Состояние
Подготовка площадки
Застройщик
Общая площадь
59.66 м²
Этаж / всего
13 / 18
Тип и серия дома
Новой планировки
Санузел
Раздельный

Продается 2-комнатная квартира в новостройке СОЮЗ ПРИОРИТИ МАХ, д. 4 по адресу Иркутская область, Иркутск, Свердловский от застройщика.
Общая площадь квартиры — 59.66 кв.м. Компания-застройщик — ГРАНДСТРОЙ.
Более подробную информацию по квартире и способу оплаты можно уточнить по телефону.

Номер объявления SD38-467299.

Представитель застройщика ГРАНДСТРОЙ:
Позвонить
Скажите застройщику, что нашли это объявление на СИБДОМЕ
  • квартиры по цене застройщика
  • комиссия покупателя 0%
  • помощь в получении ипотеки по сниженным ставкам
  • помощь в реализации вашей недвижимости
Написать

Похожие объявления