Меню Поиск Разместить Избранное Кабинет

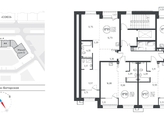
Продается 1-комн. квартира, 41.52 м²

Объявление 466794, обнов. 24.10.25
47
9 260 000 ₽ 223 025 ₽/м²
Следить за ценой

Подписка на изменение цены

Мы сообщим вам, если цена объекта изменится
или на почту
Нажимая кнопку «Подписаться» вы соглашаетесь с политикой конфиденциальности
Купить в ипотеку:
Адрес
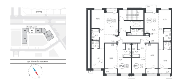
Иркутск, Свердловский, Эдуарда Дьяконова ул, д. 8, кв. 98
Название ЖК
Тип жилья
новостройка
Год постройки
май 2025
Общая площадь
41.52 м²
Площадь кухни
16.59 м²
Этаж / всего
5 / 10
Тип дома
Монолит-кирпич
Тип и серия дома
Новой планировки
Санузел
Совмещенный
Лоджия
1
Ремонт/отделка
Хорошее состояние

4 дом СОЮЗ PRIORITY - Особенное пространство, отличающееся своей приватностью и функционалом от всего объема жилого комплекса СОЮЗ PRIORITY. Чтобы каждый, кто предпочитает более камерный формат жилья чувствовал себя дома.

Дом высотой 9 этажей с общественными помещениями – лобби, комьюнити центром и подземным паркингом, доступным только для резидентов.

Дворовая территория жилого квартала закрыта для доступа посторонних лиц и обеспечена многоуровневой системой охраны и контроля доступа во двор и в подъезды.

Композиция и цветовое решение фасадов создают современный динамичный городской облик. Сочетание фактур декоративного камня с композитными панелями придает визуальному образу жилого комплекса совершенно особенный характер.

\*Цена актуальна при условии 100% оплаты или с помощью обычной (не субсидированной) ипотеки. Номер объявления SD38-466794.

ГРАНДСТРОЙ
По вопросам покупки обращаться:
Позвонить
Скажите застройщику, что нашли это объявление на СИБДОМЕ
Написать

Похожие объявления