Меню Поиск Разместить Избранное Кабинет

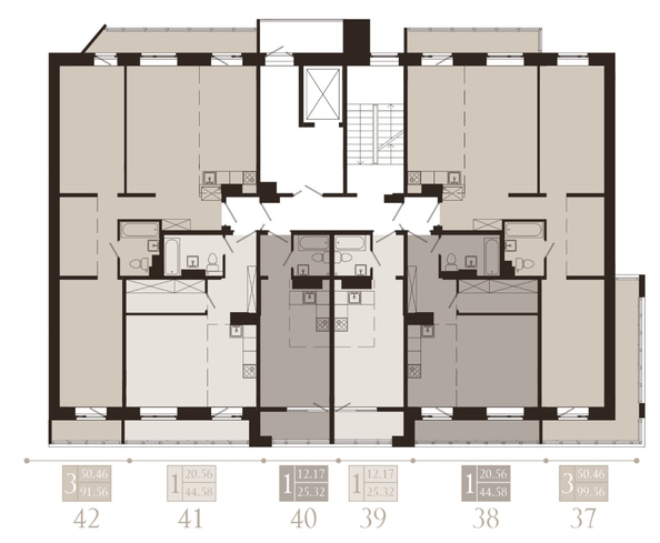
Продается 3-комн. квартира 99.56 м²

Объявление 465890, обнов. 23.02.26
210
16 352 000 ₽ 164 243 ₽/м²
Следить за ценой

Подписка на изменение цены

Мы сообщим вам, если цена объекта изменится
или на почту
Нажимая кнопку «Подписаться» вы соглашаетесь с политикой конфиденциальности
Купить в ипотеку:
Адрес
Иркутск, Правобережный р-н,
улица Советская, 115/1 стр.
Название ЖК
Тип жилья
новостройка
Год постройки
ноя. 2025
Общая площадь
99.56 м²
Этаж / всего
8, 9 / 9
Тип дома
Монолит-кирпич
Тип и серия дома
Индивидуальный проект
Ремонт/отделка
Черновая

Информация о площади квартиры носит ознакомительный характер, не является публичной офертой.Указана проектная площадь квартиры с балконом/лоджией без применения понижающих коэффициентов. Возможно отклонение фактической площади квартиры в пределах 5%. Информацию о фактической площади квартиры уточняйте в отделе продаж., ЖК «Суворов» состоит всего из трёх блок-секций, объединённых единой архитектурой. Расположение комплекса даёт массу преимуществ для его жителей — всё нужное уже есть рядом.

Развитая транспортная инфраструктура улицы Советской позволяет даже без автомобиля добраться до центра за 10-15 минут. Номер объявления SD38-465890.

ГК ПарапетСтрой
По вопросам покупки обращаться:
Позвонить
Скажите застройщику, что нашли это объявление на СИБДОМЕ
Написать

Похожие объявления

Не можете найти нужный вариант?

Оставьте заявку на подбор объекта и мы отправим ее трем проверенным нами агентствам недвижимости. Они возьмут все вопросы поиска на себя.
Нажимая кнопку «Отправить заявку» вы соглашаетесь с политикой конфиденциальности.